Author / Achim Später
-
Integriertes städtebauliches Entwicklungskonzept (ISEK) für die Gustav-Clauss-Anlage in St. Ingbert
Die Gustav-Clauss-Anlage ist Teil der Rohrbachachse und hat als „grüne Lunge“ von St. Ingbert eine große Bedeutung. Die Ansprüche an städtischen Grünflächen aber steigen kontinuierlich – durch den Klimawandel, durch innerstädtische Nachverdichtung, durch die Notwendigkeit, psychosoziale Belastungen auszugleichen und Bewegungsmangel zu beheben.
-
Integriertes, energetisches Quartierskonzept inklusive Machbarkeitsstudie „Schlossberg Blieskastel“
Für eine nachhaltige Stadtentwicklung und Energiewende wurde für das Quartier Schlossberg in Blieskastel ein integriertes energetisches Quartierskonzept aufgestellt.
Im Rahmen des KfW-Programms Nr. 432 „Energetische Stadtsanierung“ soll der energetische Sanierungsprozess vom Einzelgebäude zum Quartier erweitert werden. Das heißt, die Anforderungen an energetische Gebäudesanierung, effiziente Energieversorgungssysteme und den Ausbau erneuerbare Energien soll mit demografischen, ökonomischen und städtebaulichen Belangen verknüpft werden
-
Städtebaulicher Wettbewerb Waldmohr – „Wohnen in der grünen Mitte“
Die Ortsgemeinde Waldmohr erwartete im Rahmen eines Städtebaulichen Wettbewerbes Vorschläge, die dem Grundsatz der Planung „Nachhaltiges Wohnen im Einklang mit Natur und Umwelt“ entsprechen.
-
ISEK St. Ingbert
Die Gustav-Clauss-Anlage ist Teil der Rohrbachachse und hat als „grüne Lunge“ von St. Ingbert eine große Bedeutung. Die Ansprüche an städtischen Grünflächen aber steigen kontinuierlich – durch den Klimawandel, durch innerstädtische Nachverdichtung, durch die Notwendigkeit, psychosoziale Belastungen auszugleichen und Bewegungsmangel zu beheben. All dies erfordert mehr Qualität und mehr Pflege. Gleichzeitig sinken die Mittel, die für Pflege und Unterhaltung von Grünflächen zur Verfügung stehen.
-
Nutzungskonzept Altes Rathaus Ottweiler
Das Projekt widmet sich der Revitalisierung des derzeit größtenteils ungenutzten „Alte Rathauses“ aus dem Jahr 1717 zu einem zentralen Bürgerort inmitten der baukulturell wertvollen Altstadtkulisse in der Ottweiler Altstadt.
-
Bebauungsplan „Gewerbegebiet Im Briehl – Erweiterung Betriebsgelände Fa. Hörmann“ Freisen
Ziel des Bebauungsplanes mit der parallelen Teiländerung des Flächennutzungsplanes ist die Schaffung der planungsrechtlichen Voraussetzungen zur Erweiterung des Betriebsgeländes der Firma Hörmann in Freisen. Aufgrund von strukturellen Veränderungen in den Arbeitsabläufen werden Erweiterungsflächen insbesondere für Produktion und Logistik benötigt. Dabei steht der direkte Bezug und Anschluss an die bestehende Produktionshalle zur Sicherung und Entwicklung des Produktionsstandorts im Vordergrund.
-
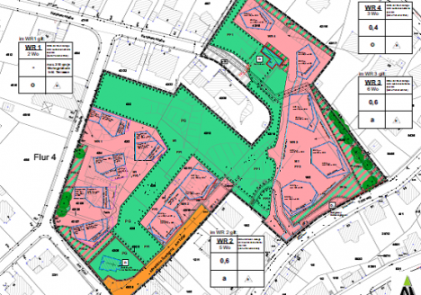
Bebauungsplan Wohngebiet „Am Triller“ Saarbrücken
Als Grundlage für den Vorhabenbezogenen Bebauungsplan, wurde durch den Vorhabenträger in einem umfassenden Abstimmungsprozess mit der Landeshauptstadt Saarbrücken und dem Gestaltungsbeirat ein Konzept entwickelt, das eine verträgliche Entwicklung des Röchlingparks für Wohnbauzwecke unter gleichzeitigem Erhalt großer Teile des alten Baumbestandes und der stadt- und landschaftsbildprägenden „grünen Krone“ vorsieht.
-
Bebauungsplan „Primsaue II“ Nalbach
Nach der Erschließung und schnellen Vermarktung des Gewerbegebietes „Primsaue I“ bestand in Nalbach ein Bedarf zur Entwicklung weiterer Gewerbeflächen. Vor diesem Hintergrund hat die Gemeinde Nalbach die Erarbeitung eines Rahmenplanes für ein nachhaltiges und klimaneutrales Gewerbegebiet „Primsaue II“ beauftragt. Dieser bildete die Basis für die fachgerechte Erstellung des Bebauungsplanes.
-
Bebauungsplan Solarpark Oberarnbach
Die Sunera GmbH realisiert in der Verbandsgemeinde Landstuhl, im Bereich der Ortsgemeinde Oberarnbach, eine etwa 3 Hektar große Photovoltaik-Freiflächenanlage. Durch ARGUS CONCEPT wurde das verbindliche Bauplanungsrecht durch die Aufstellung eines Bebauungsplanes mit einer parallelen Flächennutzungsplan-Teiländerung, gemäß den gesetzlichen Vorschriften des Baugesetzbuches (BauGB) einschließlich der Verfahrensdurchführung hergestellt.
-
Flächennutzungs- und Landschaftsplan Nalbach
Nach § 5 BauGB ist im Flächennutzungsplan für das gesamte Gebiet der Gemeinde die sich aus der beabsichtigten städtebaulichen Entwicklung ergebende Art der Bodennutzung nach den voraussehbaren Bedürfnissen der Gemeinde in den…
Neueste Beiträge
- Wir machen kurz die Lichter aus – aber nur, um neue (regenerative) Energie zu sammeln!
- ARGUS CONCEPT unterstützt die Dillinger Hütte auf dem Weg zum Green Steel
- Wohnbauflächenanalyse Stadt Püttlingen
- Sicherung und Stärkung eines Gewerbestandortes am Osthafen in der Stadt Frankfurt am Main
- Treffen Sie uns auf der ONBOARDING 2023 in Birkenfeld – Die Firmenkontaktmesse der Hochschule Trier
Neueste Kommentare